








Durham
Plan Set Types
PDF Download
- PDF plan sets are fast electronic delivery and inexpensive for local printing
- The print-ready PDF file will be emailed to you upon purchase
CAD DWG Download
- For use by design professionals to make substantial changes to your house plan
- The DWG file will be emailed to you upon purchase
Printed 5 Copy Set
- 5 hard copy plan sets mailed (shipping Included) to your door
What's Included
Title Sheet
- Plan rendering
- Page index of complete set and total square footage of the home
Detailed Floor Plans
- All room and wall dimensions, ceiling heights, and overall details of each room in your home
- Window and door sizes
- Used for project estimates and on-site framing and construction
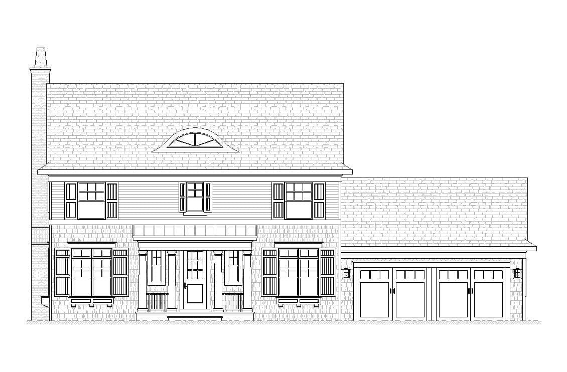
Exterior Elevations
- Front, sides, and rear elevations
- Illustrates exterior materials, details, wall heights & dimensions, siding and trim details, plus recommended door styles
Building Construction Details
- Building and/or wall sections
- Eave and other exterior details/specs
- Roof plan with overhangs and pitch
- Exterior door, window trim, and garage door details
Not included:
Structural engineering: this varies greatly by each area of the country, municipality, and soil conditions. We recommend having your builder work with a local structural engineer if necessary to complete these for your home.
HVAC, Plumbing, or Electrical Plans: These are very user specific and its recommended you work directly with your builder and his sub-contractors to tailer a system and plan to your specific needs and budget.
Modifications
Need to make modifications to adapt the Durham plan to fit your family needs, property, or layout desires?
Whatever you need, submit your request in a few simple steps, and we will provide a free quote.

Durham House Plan Description
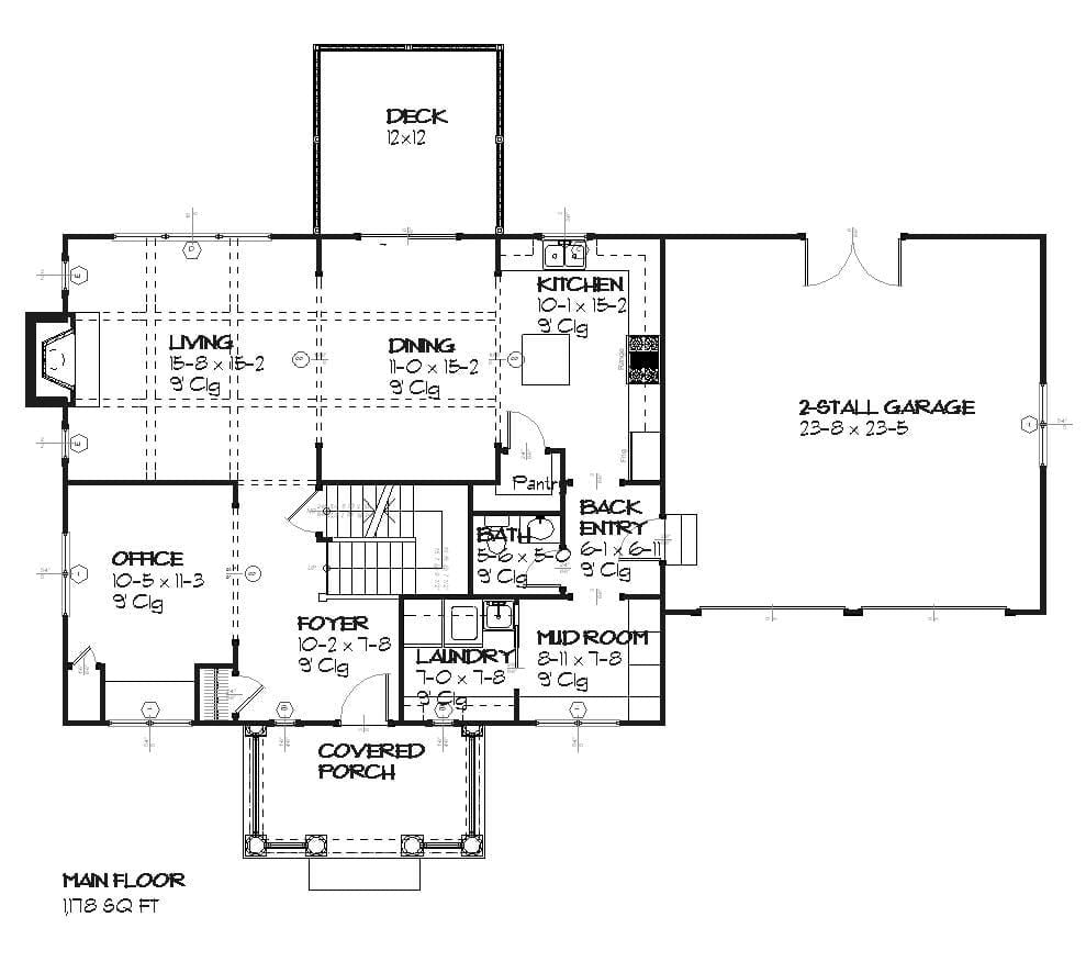
3100 Square Foot 3-Bedroom Shingle Style House Plan with Walkout Basement
Total Heated Area: 3,094 Sq Ft
First Floor: 1178 Sq Ft
Second Floor: 1116 Sq Ft
Third Floor: Sq Ft
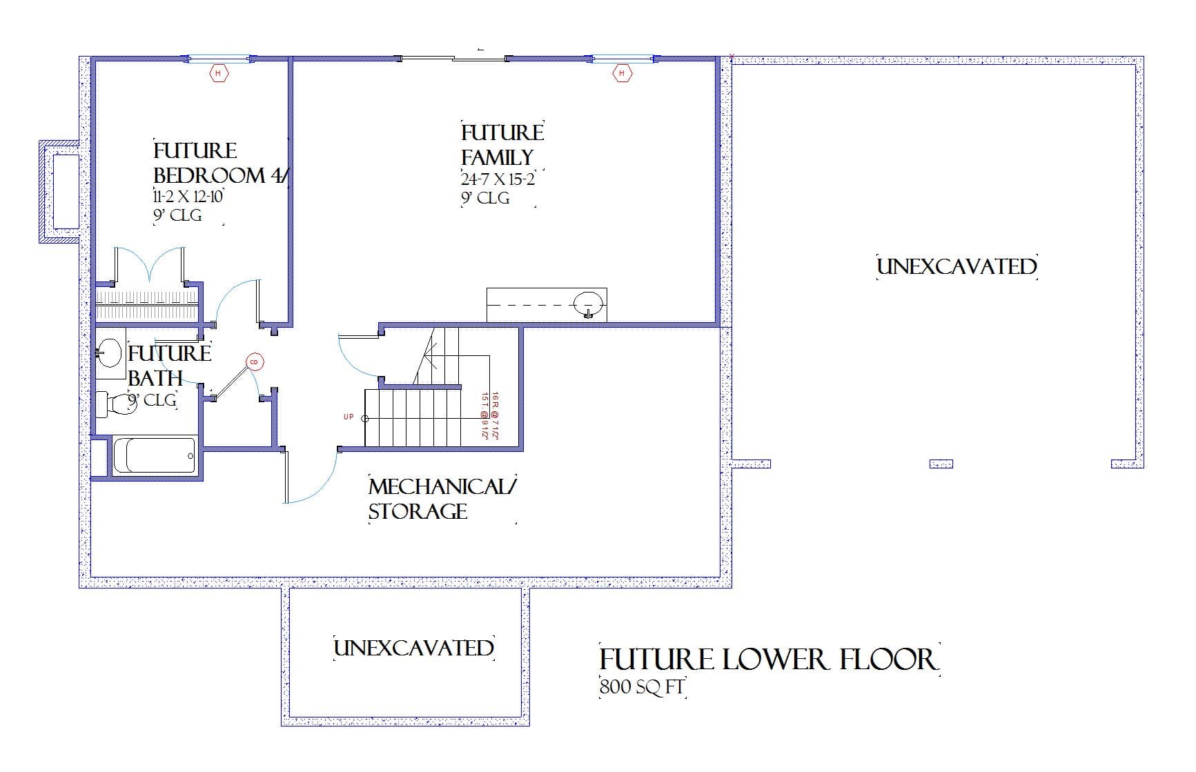
Lower Floor: 800 Sq Ft
3 Bedrooms
2.5 Bathrooms
2 Floor(s)
Width:
Depth:
Height:
31'-0"
*Height taken from front elevation
as drawn to highest roof peak
2 car
Foundation: Daylight Basement
Roof Framing: Truss
Main Roof Pitch: 8/12 Main
Wall Framing: 2x4
Main Floor: 9'-0"
Upper Floor: 8'-0"
Lower Floor: 9'-0"
Bonus Floor:
